艺术传媒-new
当前位置: 首页 >> 成果展示 >> 正文
由物到图,由图到物——环艺设计专业一年级《设计制图》课程作业展
发布时间:2024-05-06       发布者:2024-05-06       浏览次数:

【山科艺传|师生风采】由物到图,由图到物



由物到图   由图到物


环艺设计专业一年级

《设计制图》课程作业展



课程介绍

本课程是环境艺术设计专业的专业基础课程。该课程主要的任务是使学生能识读一般建筑室内外施工图纸,为后续课程学习和以后从事环境艺术设计、室内外空间设计工作奠定必要的识图技能。要求学生掌握制图的基本知识,掌握专业制图的方法,能识读一般建筑施工图包括构造详图。


授课班级

2023级环境艺术设计专业(美术类)1、2、3班


指导老师

王珂    胡英杰


作品展示


01

姓名:姜沐彤

班级:2023级环境艺术设计专业美术类1班

指导老师:王  珂



02

姓名:尹宇桐

班级:2023级环境艺术设计专业美术类1班

指导老师:王  珂




03

姓名:丁彤彤

班级:2023级环境艺术设计专业美术类1班

指导老师:王  珂



04

姓名:安梦涵

班级:2023级环境艺术设计专业美术类1班

指导老师:王  珂

225AC




05

姓名:王谊乐

班级:2023级环境艺术设计专业美术类1班

指导老师:王  珂

2F879

图片


06

姓名:李诺

班级:2023级环境艺术设计专业美术类2班

指导老师:王  珂


图片


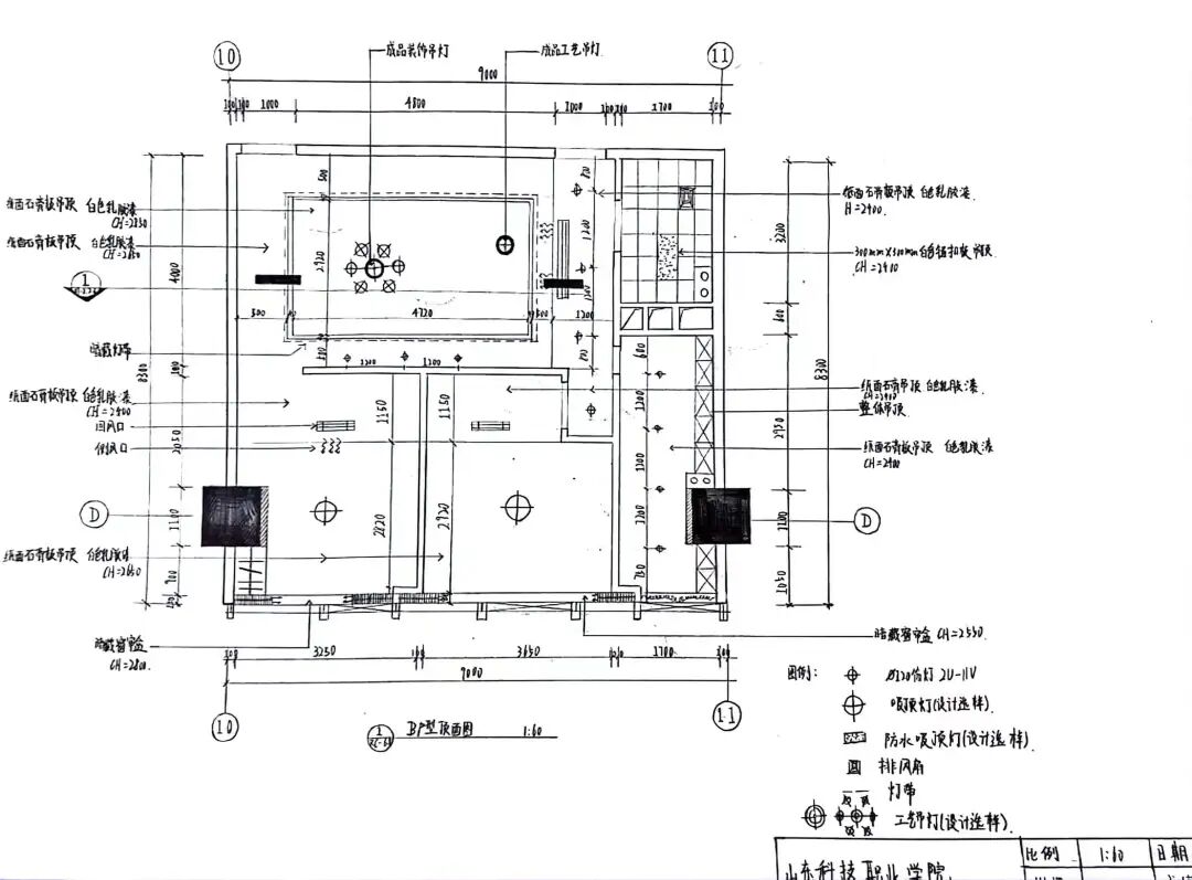
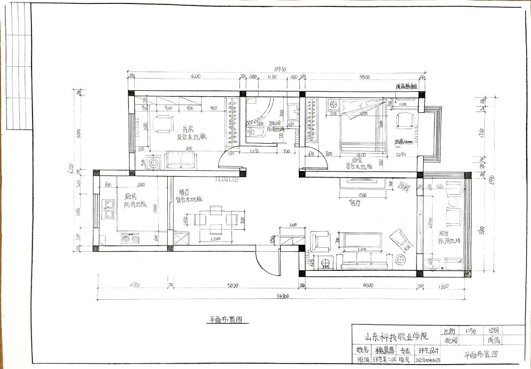
07

姓名:魏晨茜

班级:2023级环境艺术设计专业美术类2班

指导老师:王  珂


图片


08

姓名:谢瑗

班级:2023级环境艺术设计专业美术类2班

指导老师:王  珂


图片


09

姓名:孔芳

班级:2023级环境艺术设计专业美术类2班

指导老师:王  珂


图片


10

姓名:陈姿含

班级:2023级环境艺术设计专业美术类2班

指导老师:王  珂


图片


11

姓名:王旭

班级:2023级环境艺术设计专业美术类3班

指导老师:胡英杰


图片


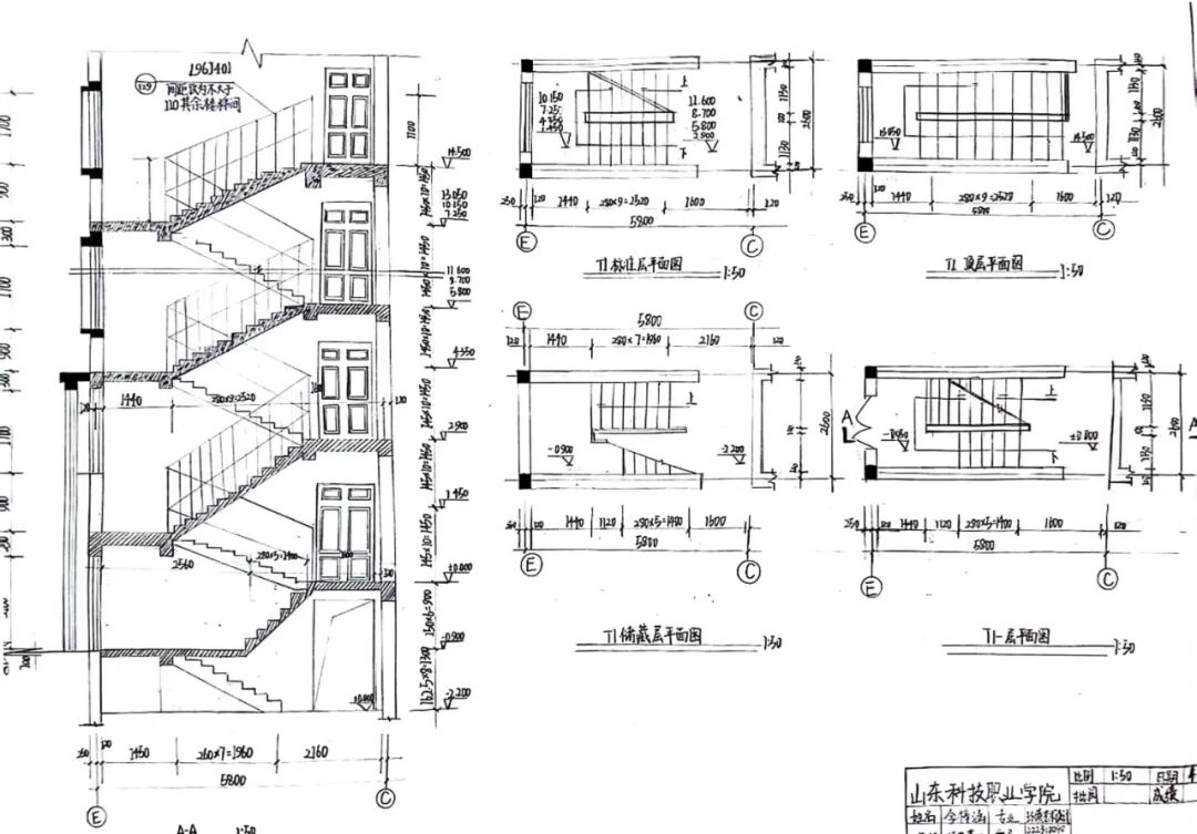
12

姓名:魏畅

班级:2023级环境艺术设计专业美术类3班

指导老师:胡英杰


图片


13

姓名:李梓涵

班级:2023级环境艺术设计专业美术类3班

指导老师:胡英杰


图片


14

姓名:刘睿雁

班级:2023级环境艺术设计专业美术类3班

指导老师:胡英杰


图片


15

姓名:王天天

班级:2023级环境艺术设计专业美术类3班

指导老师:胡英杰



每一张精美的图纸之后

都少不了老师认真的辅导

少不了同学们辛勤的付出

接下来随小编一起

来看看每一张图纸背后的故事吧



花絮一



图片


花絮二



图片

花絮三



图片

花絮四



图片


该展览为部分学生作业,

随机排序,

展示顺序与排名无关,

欢迎广大师生同仁关注交流

并提出宝贵意见。


-END-


图片





学院地址:山东省潍坊市潍城区浮烟山路19777号   邮编:261053

版权所有:山东科技职业学院艺术传媒系  招生电话:0536-8782349